R-1910-25UE

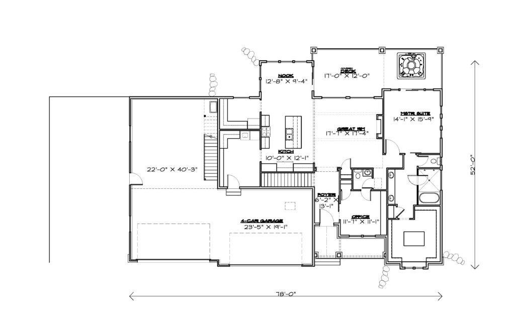
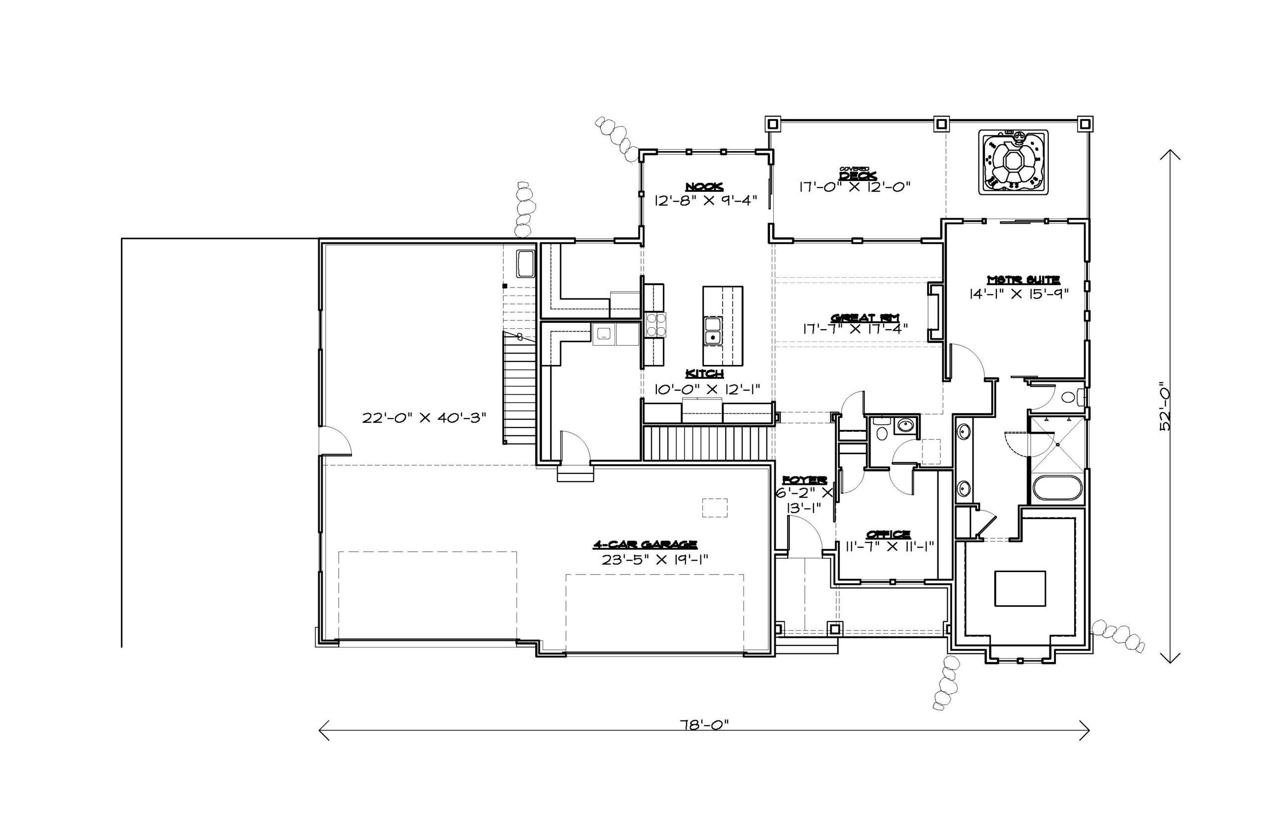
Main Floor
Upper Floor
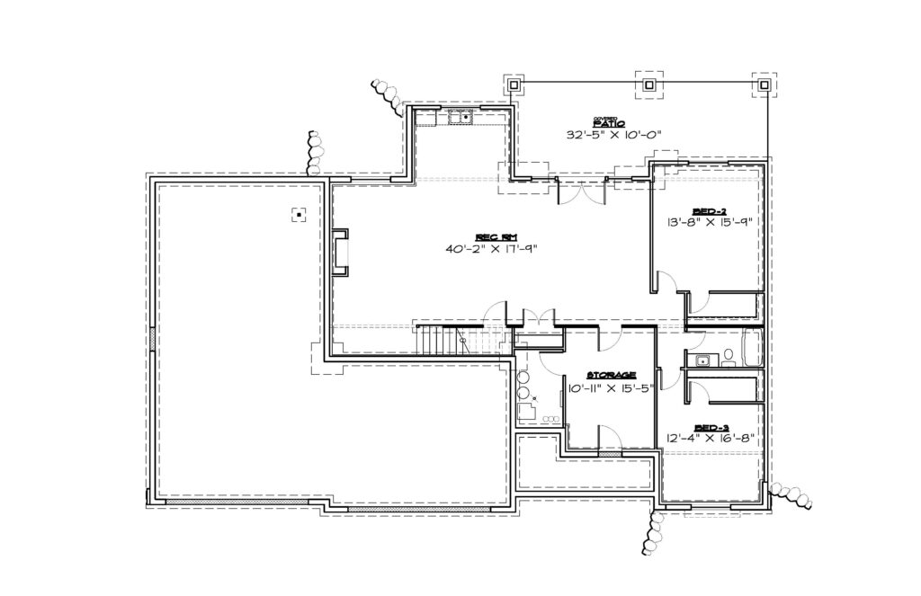
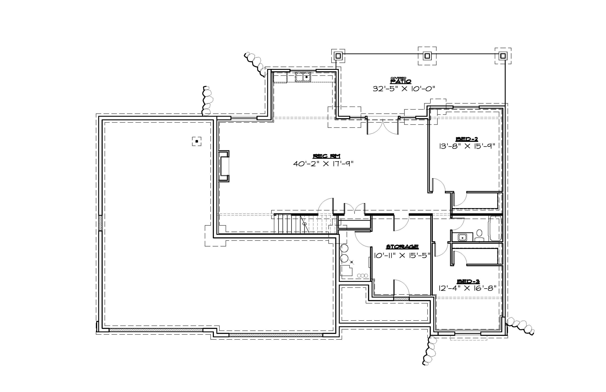
Basement