Skip to content
CREATIONS WEST
Home
Featured
Custom
Stock
About
Home
Featured
Custom
Stock
About
Let's Talk!
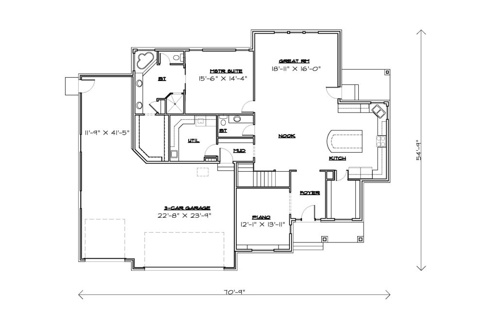
R-1911-14UE
Download PDF
Back to search
Type:
Rambler
Style:
Craftsman
1911 sq. ft
70' Wide
54' Deep
1 Rooms
1.5 Bathrooms
Main Floor
Basement
Front Elevation
Rear Elevation