Skip to content
CREATIONS WEST
Home
Featured
Custom
Stock
About
Home
Featured
Custom
Stock
About
Let's Talk!
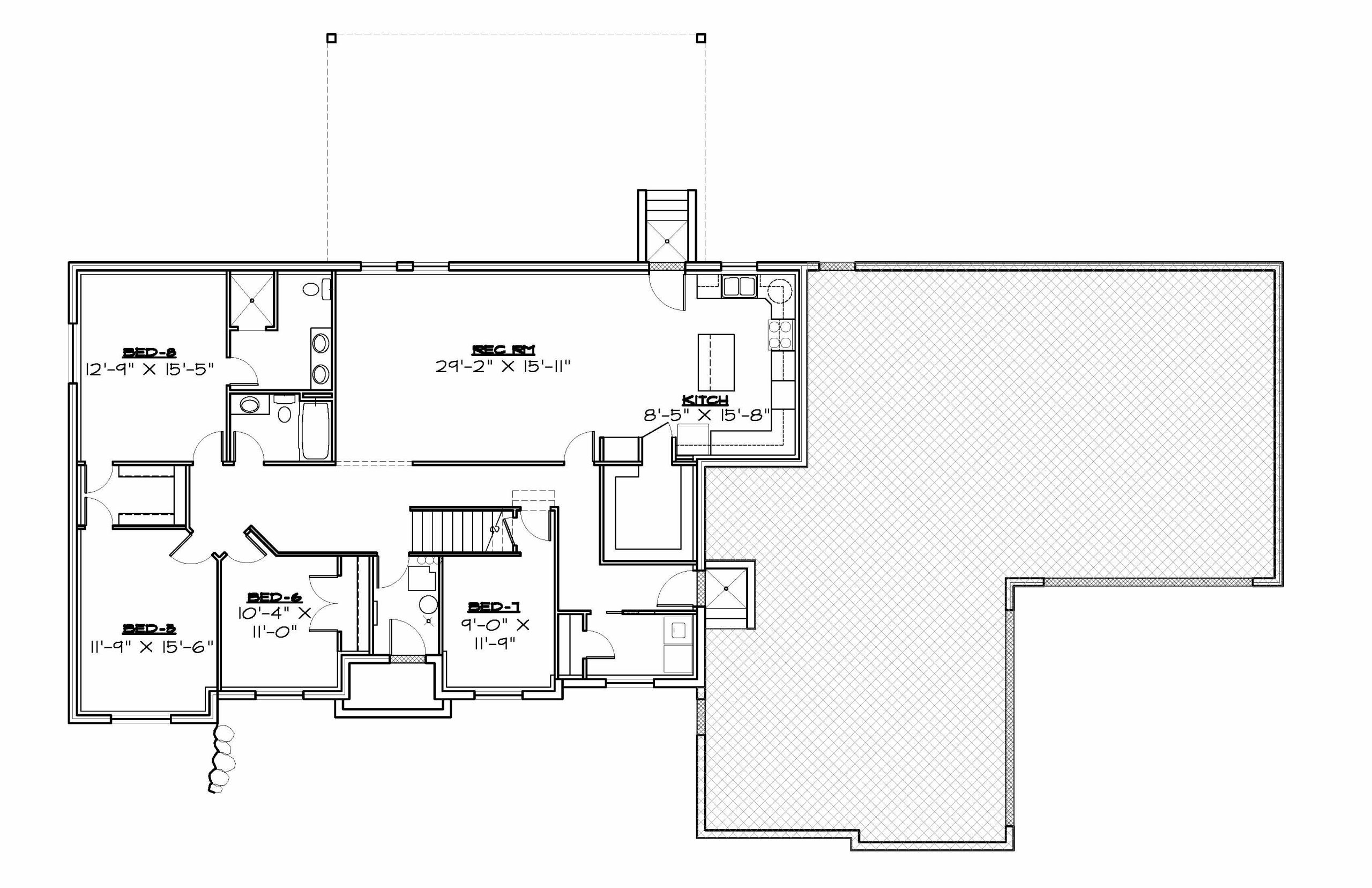
R-2041-15UE
Download PDF
Back to search
Type:
Rambler
Style:
Southwest
2041 sq. ft
101' Wide
49' Deep
3 Rooms
2 Bathrooms
Main Floor
Upper Floor
Basement
Front Elevation
Rear Elevation