R-2047-25UE

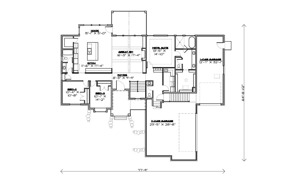
Main Floor
Upper Floor
Basement
Front Elevation
Rear Elevation