Skip to content
CREATIONS WEST
Home
Featured
Custom
Stock
About
Home
Featured
Custom
Stock
About
Let's Talk!
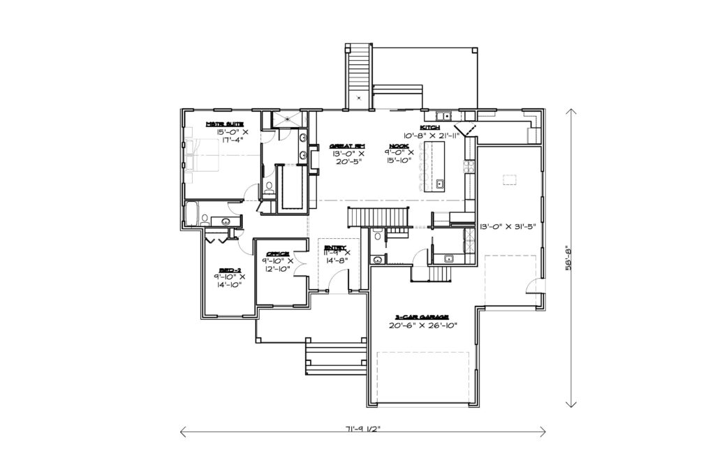
R-2115-25UE
Download PDF
Back to search
Type:
Rambler
Style:
Contemporary
,
Cottage
,
Traditional
2115 sq. ft
71' Wide
58' Deep
5 Rooms
5 Bathrooms
Main Floor
Basement
Front Elevation
Rear Elevation