Skip to content
CREATIONS WEST
Home
Featured
Custom
Stock
About
Home
Featured
Custom
Stock
About
Let's Talk!
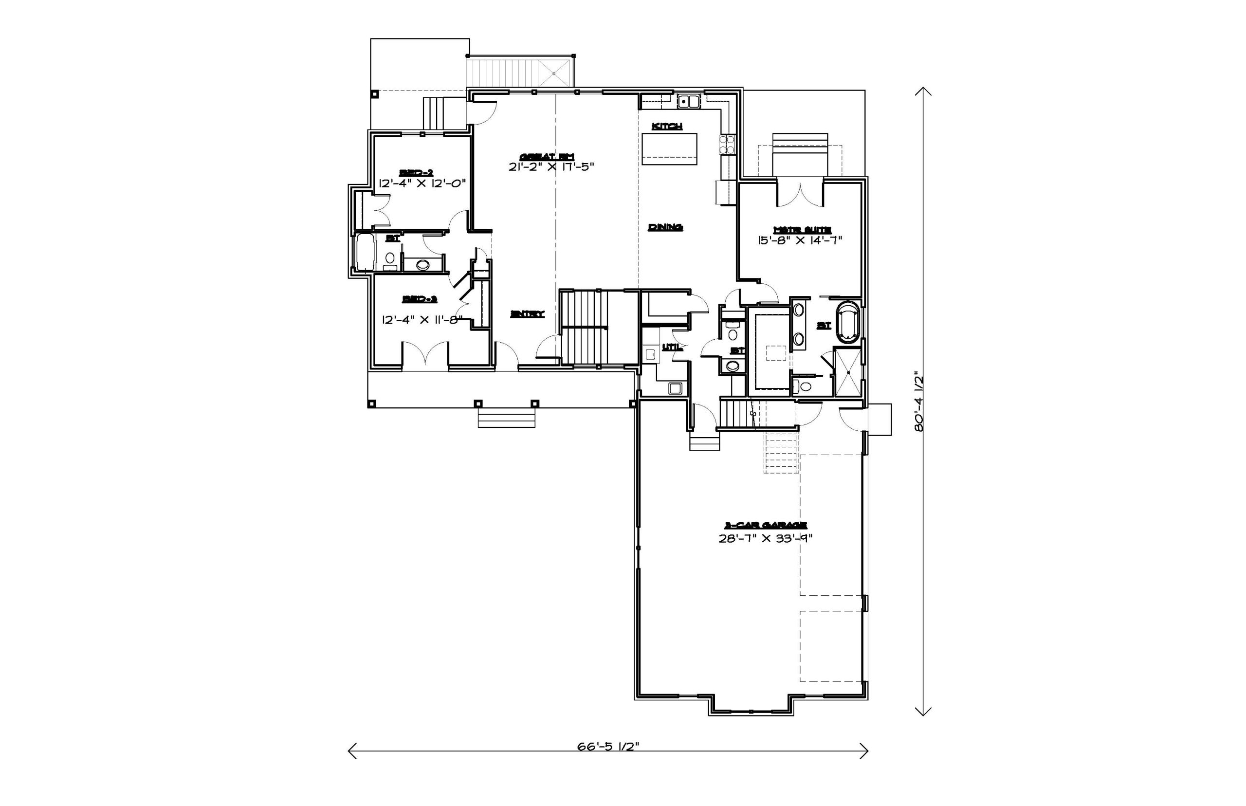
R-2163-19UE
Download PDF
Back to search
Type:
Rambler
Style:
Modern Farmhouse
2163 sq. ft
66' Wide
80' Deep
3 Rooms
2.5 Bathrooms
Main Floor
Upper Floor
Basement
Front Elevation
Rear Elevation