Skip to content
CREATIONS WEST
Home
Featured
Custom
Stock
About
Home
Featured
Custom
Stock
About
Let's Talk!
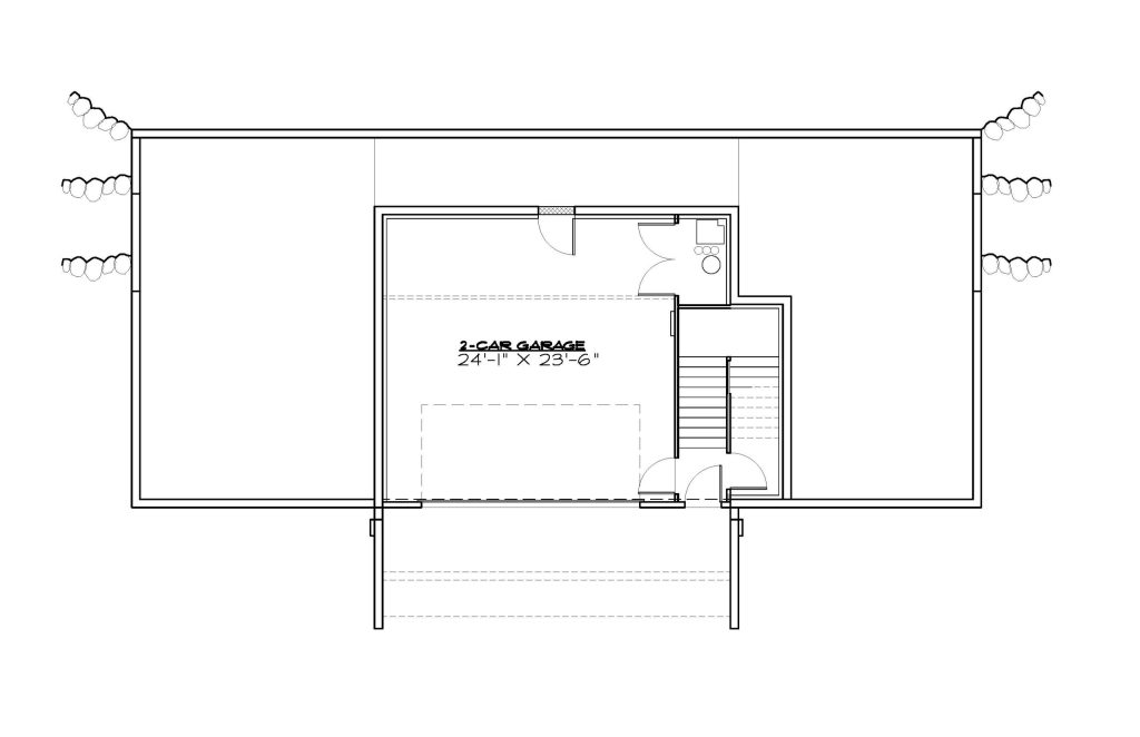
R-2181-16UE
Download PDF
Back to search
Type:
Rambler
Style:
Cabin
2181 sq. ft
70' Wide
31' Deep
3 Rooms
2 Bathrooms
Main Floor
Basement
Front Elevation
Rear Elevation