Skip to content
CREATIONS WEST
Home
Featured
Custom
Stock
About
Home
Featured
Custom
Stock
About
Let's Talk!
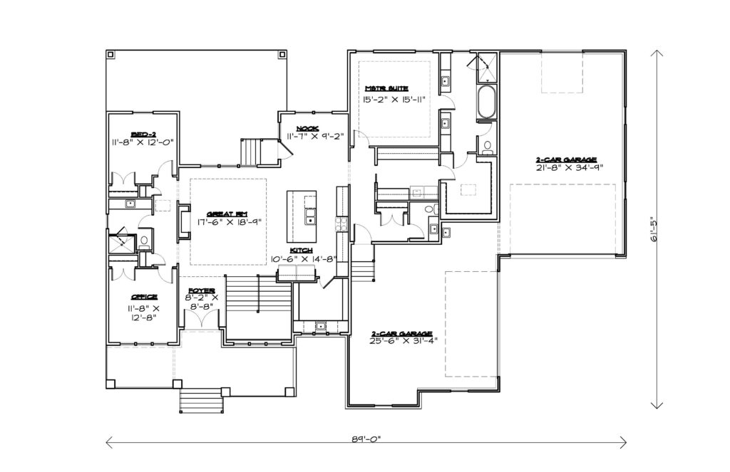
R-2303-25UE
Download PDF
Back to search
Type:
Rambler
Style:
Contemporary
,
Farmhouse
,
Modern
2303 sq. ft
89' Wide
60' Deep
4 Rooms
3 Bathrooms
Main Floor
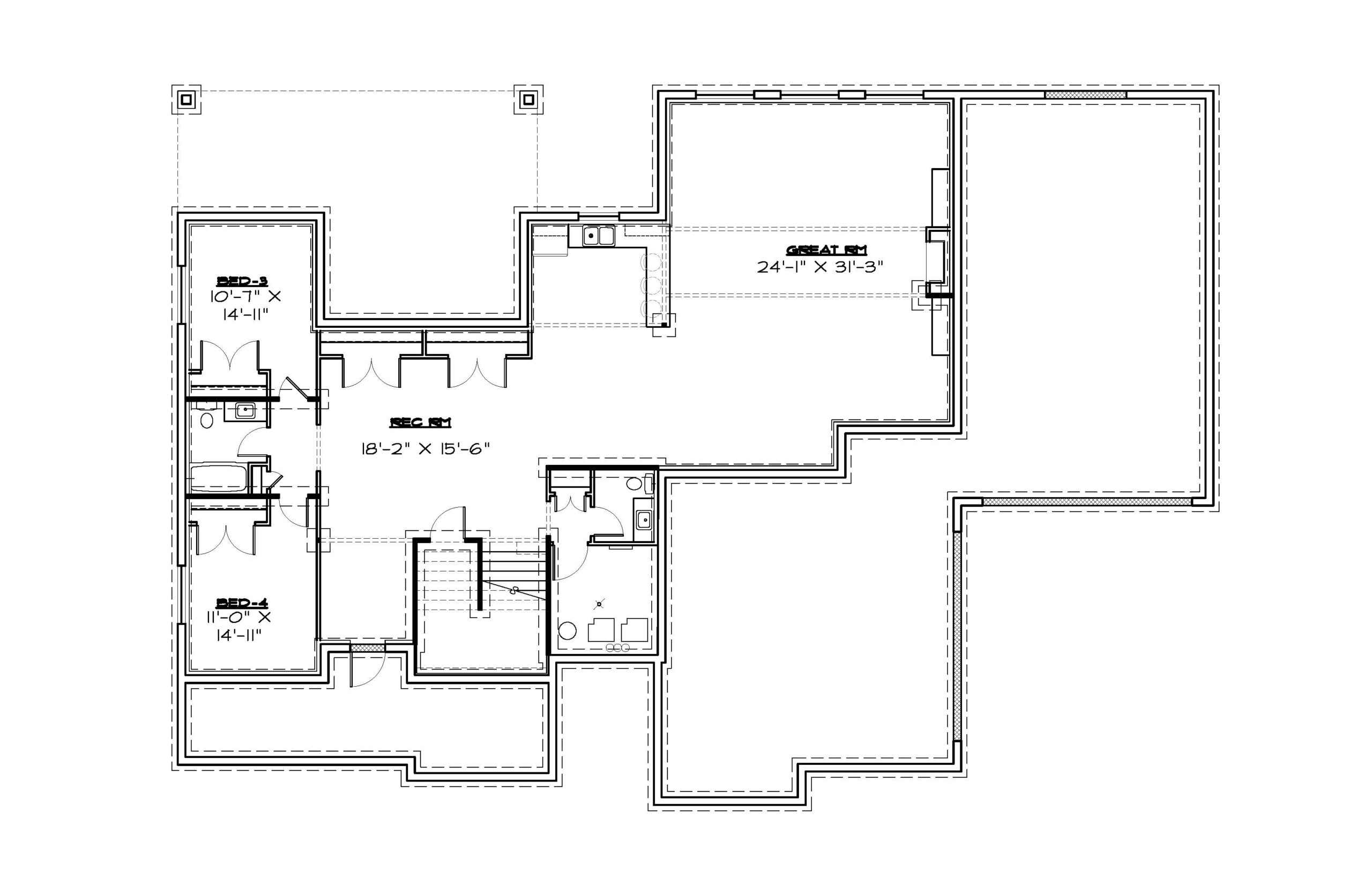
Basement
Front Elevation
Rear Elevation