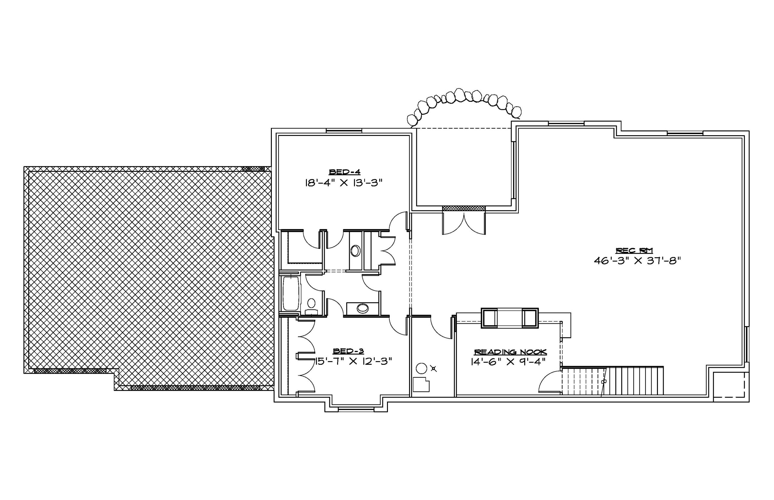
R-2383-14UE

Basement
Front Elevation
Rear Elevation