Skip to content
CREATIONS WEST
Home
Featured
Custom
Stock
About
Home
Featured
Custom
Stock
About
Let's Talk!
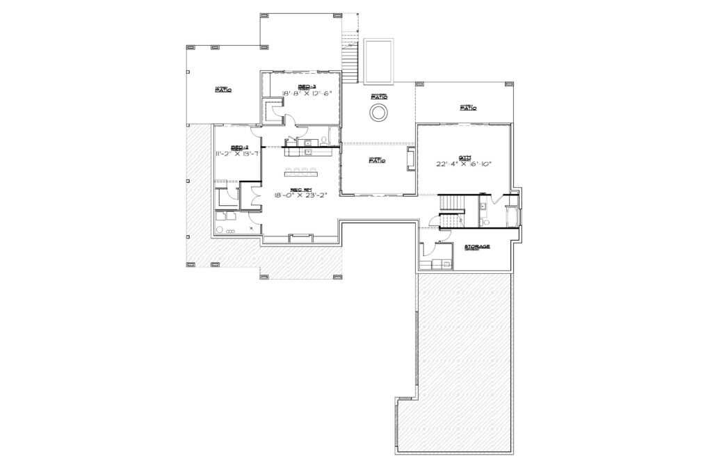
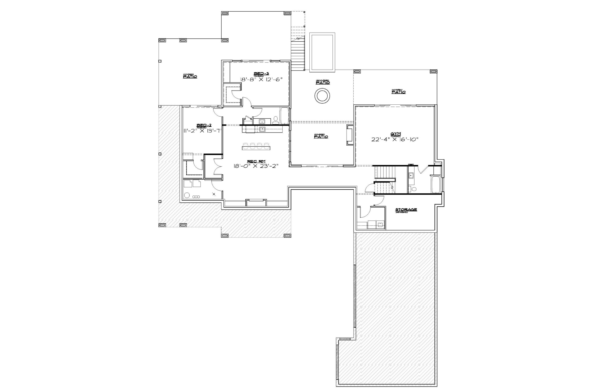
R-2452-24UE
Download PDF
Back to search
Type:
Rambler
Style:
Modern
2452 sq. ft
76' Wide
94' Deep
3 Rooms
3.5 Bathrooms
Main Floor
Basement