Skip to content
CREATIONS WEST
Home
Featured
Custom
Stock
About
Home
Featured
Custom
Stock
About
Let's Talk!
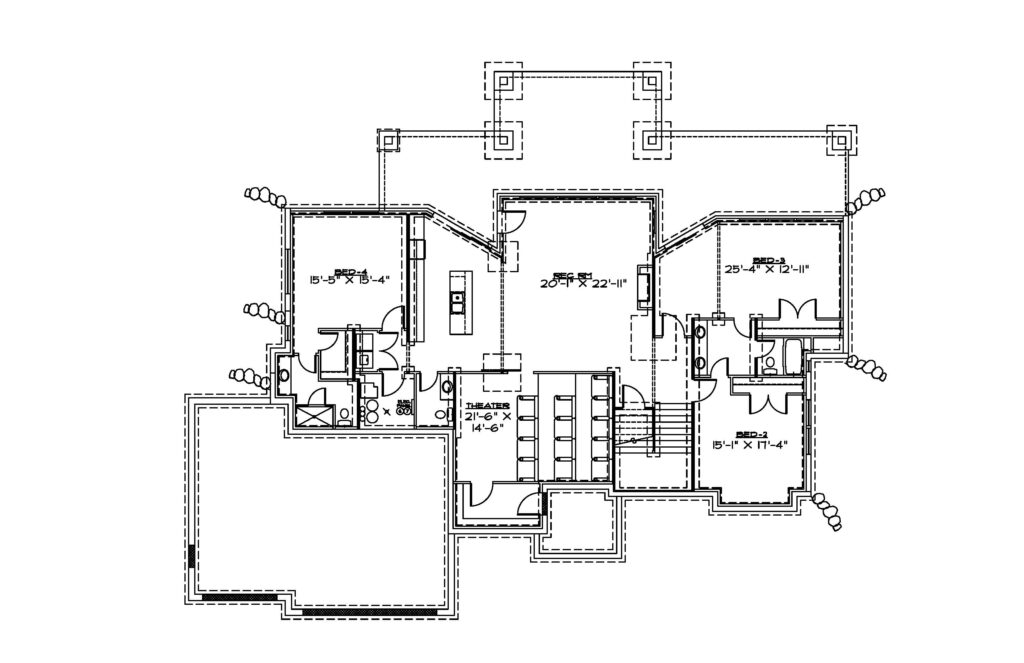
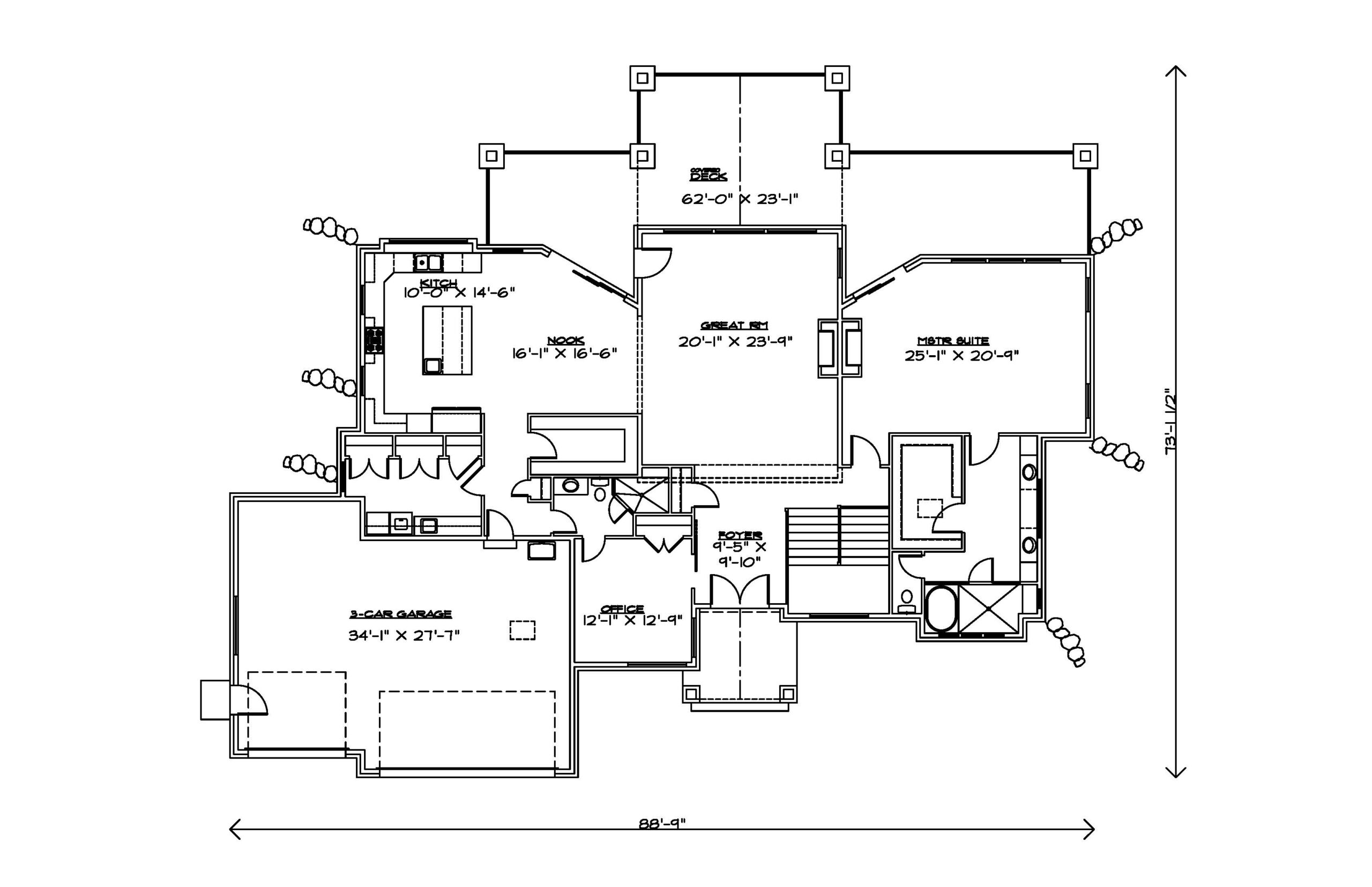
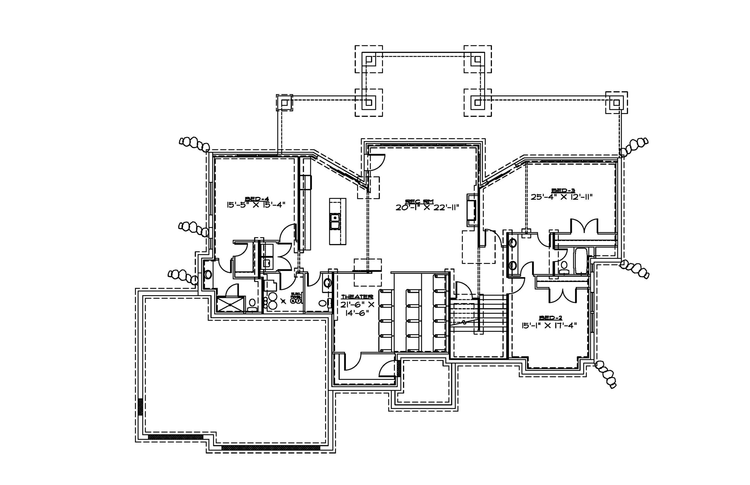
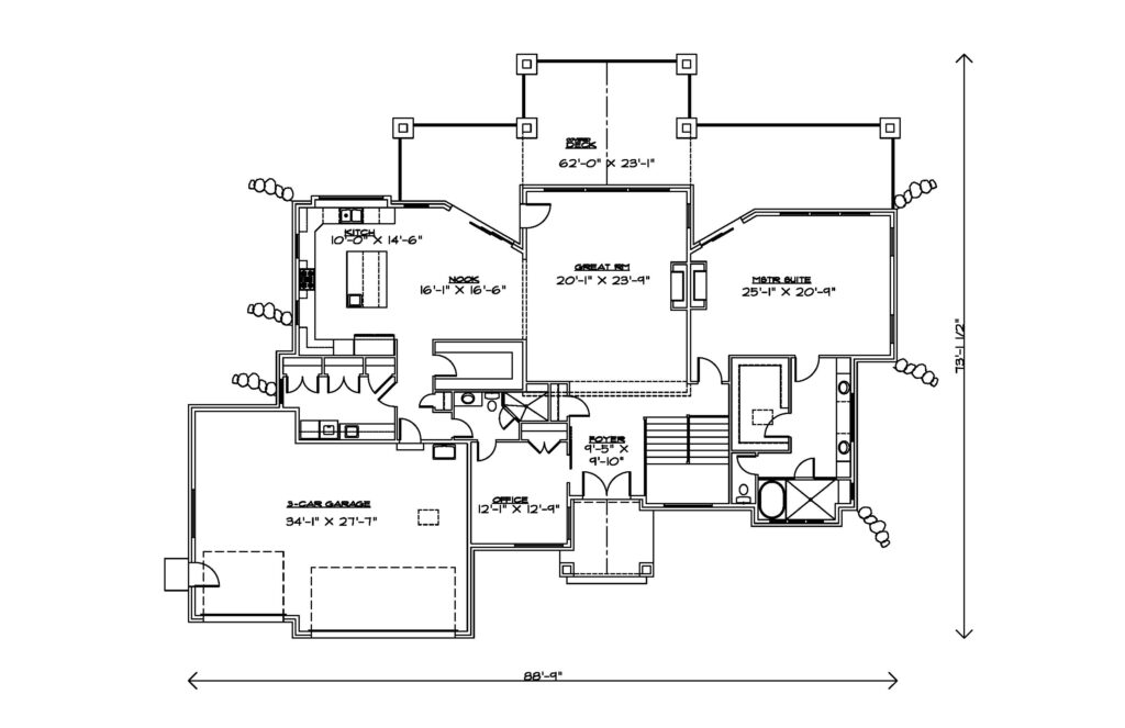
R-2655-23UE
Download PDF
Back to search
Type:
Rambler
Style:
Cabin
,
Modern
2655 sq. ft
89' Wide
73' Deep
4 Rooms
5 Bathrooms
Main Floor
Basement