Skip to content
CREATIONS WEST
Home
Featured
Custom
Stock
About
Home
Featured
Custom
Stock
About
Let's Talk!
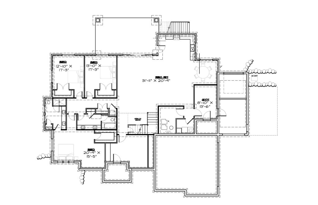
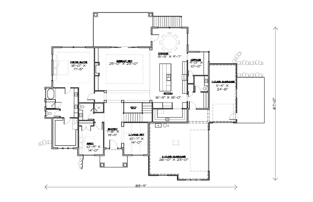
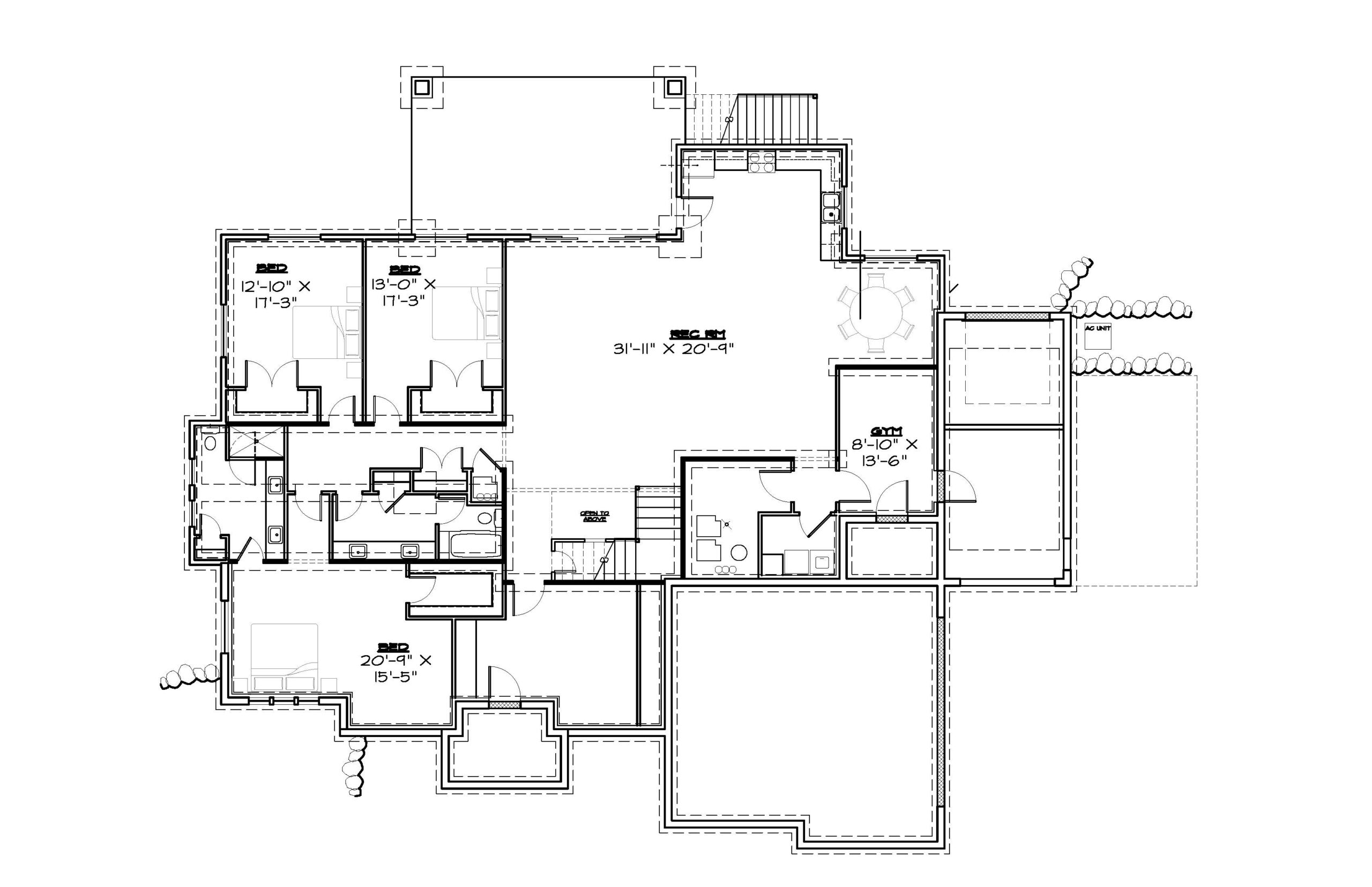
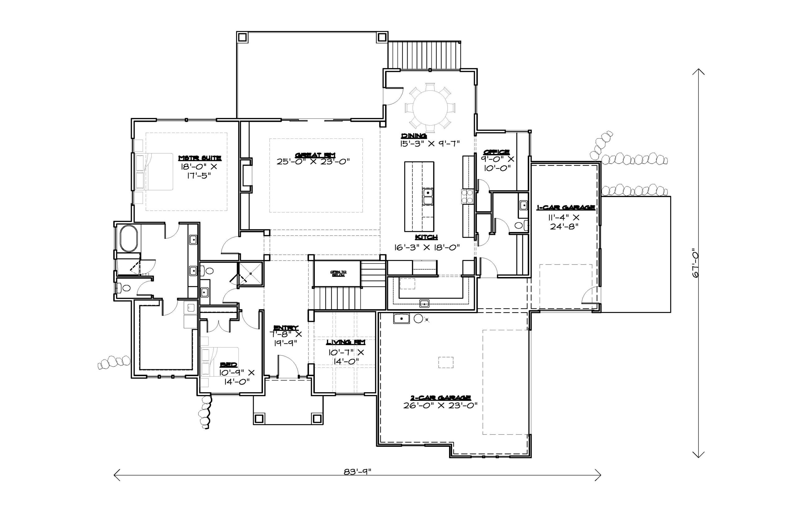
R-2952-25UE
Download PDF
Back to search
Type:
Rambler
Style:
Contemporary
,
Prairie
2952 sq. ft
84' Wide
67' Deep
5 Rooms
5 Bathrooms
Main Floor
Basement