R-3100-22UE

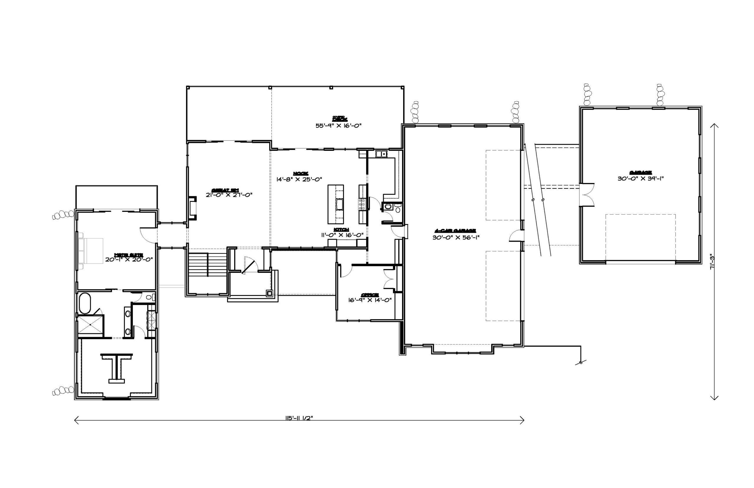
Main Floor
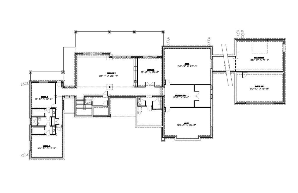
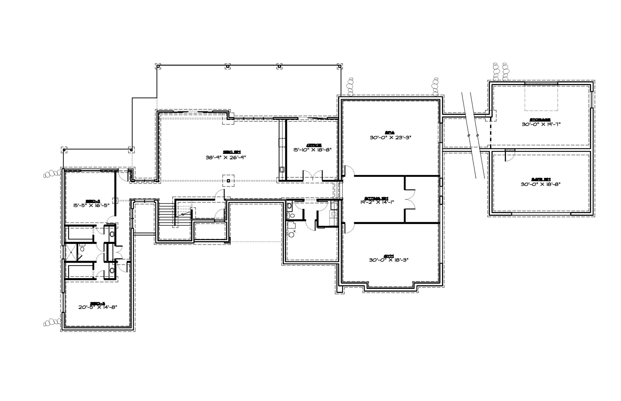
Basement