Skip to content
CREATIONS WEST
Home
Featured
Custom
Stock
About
Home
Featured
Custom
Stock
About
Let's Talk!
R-3254-13UE
Download PDF
Back to search
Type:
Rambler
Style:
French Country
4251 sq. ft
86' Wide
71' Deep
5 Rooms
4 Bathrooms
Main Floor
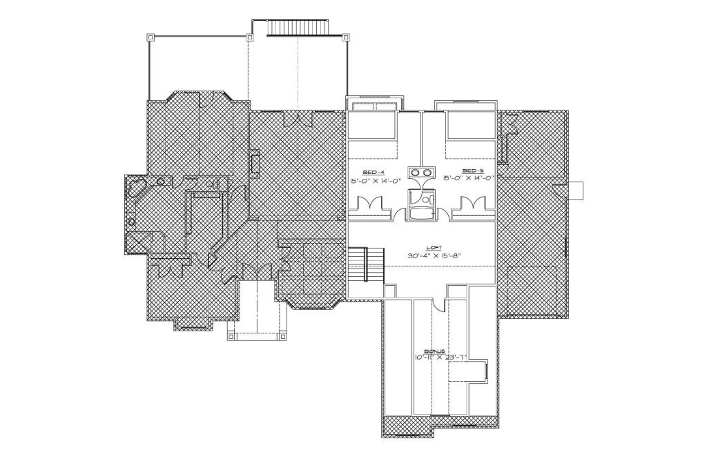
Upper Floor
Basement
Front Elevation
Rear Elevation