Skip to content
CREATIONS WEST
Home
Featured
Custom
Stock
About
Home
Featured
Custom
Stock
About
Let's Talk!
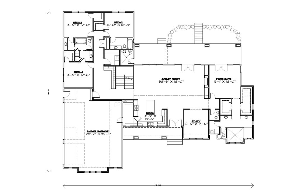
R-3408-20UE
Download PDF
Back to search
Type:
Rambler
Style:
Craftsman
,
Modern Farmhouse
,
Rustic
3408 sq. ft
92' Wide
78' Deep
4 Rooms
3.5 Bathrooms
Main Floor
Upper Floor
Basement
Front Elevation
Rear Elevation