Skip to content
CREATIONS WEST
Home
Featured
Custom
Stock
About
Home
Featured
Custom
Stock
About
Let's Talk!
R-3590-23UE
Download PDF
Back to search
Type:
Rambler
Style:
French Country
3590 sq. ft
105' Wide
68' Deep
1 Rooms
1.5 Bathrooms
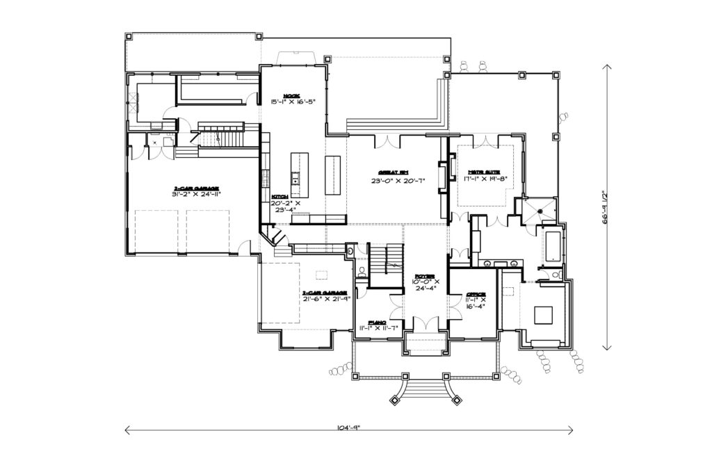
Main Floor
Main Floor
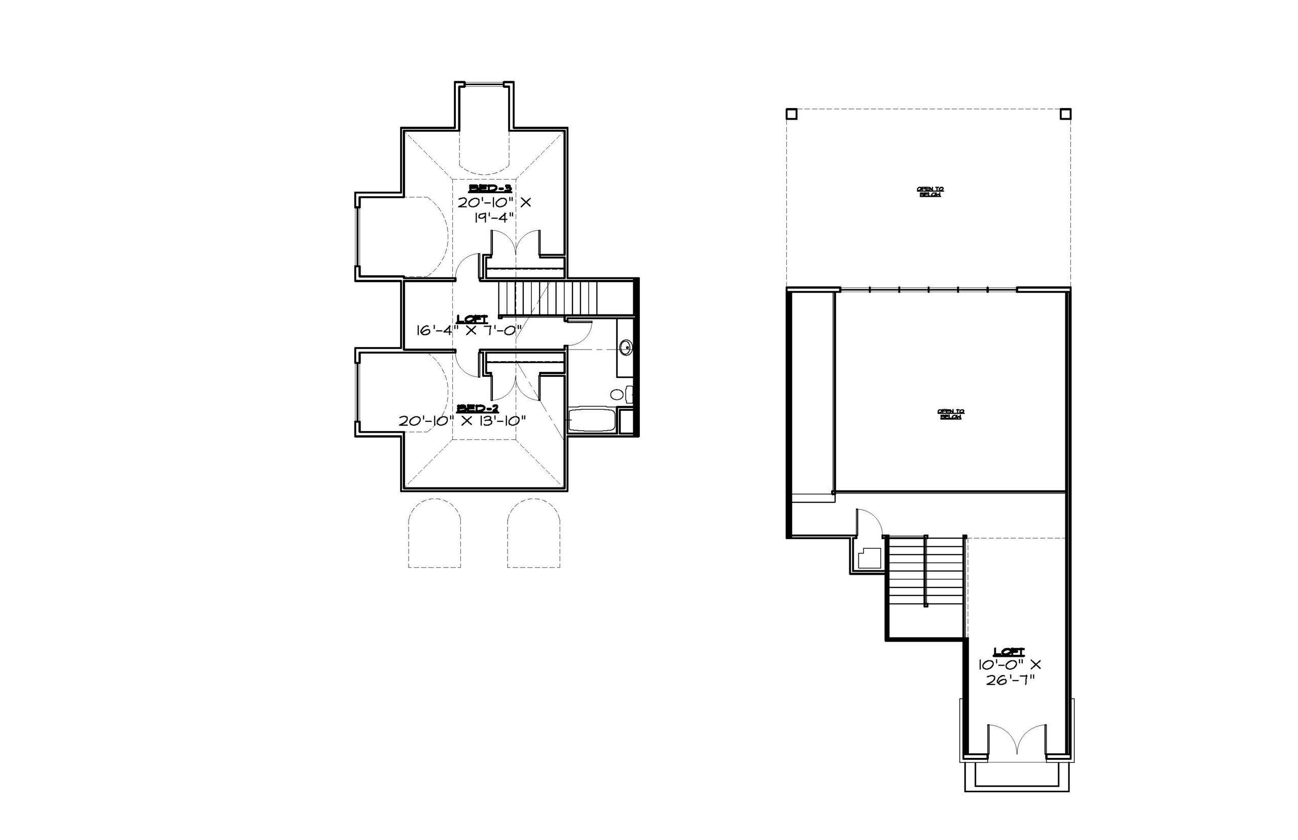
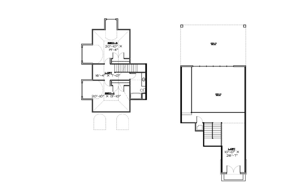
Upper Floor
Upper Floor
Basement