Skip to content
CREATIONS WEST
Home
Featured
Custom
Stock
About
Home
Featured
Custom
Stock
About
Let's Talk!
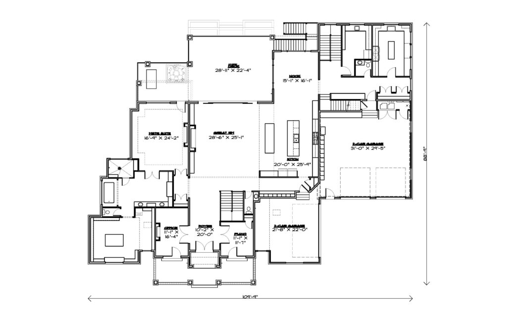
R-4365-21UE
Download PDF
Back to search
Type:
Rambler
Style:
French Country
4365 sq. ft
109' Wide
89' Deep
5 Rooms
5.5 Bathrooms
Main Floor
Main Floor
Upper Floor
Upper Floor
Basement