Skip to content
CREATIONS WEST
Home
Featured
Custom
Stock
About
Home
Featured
Custom
Stock
About
Let's Talk!
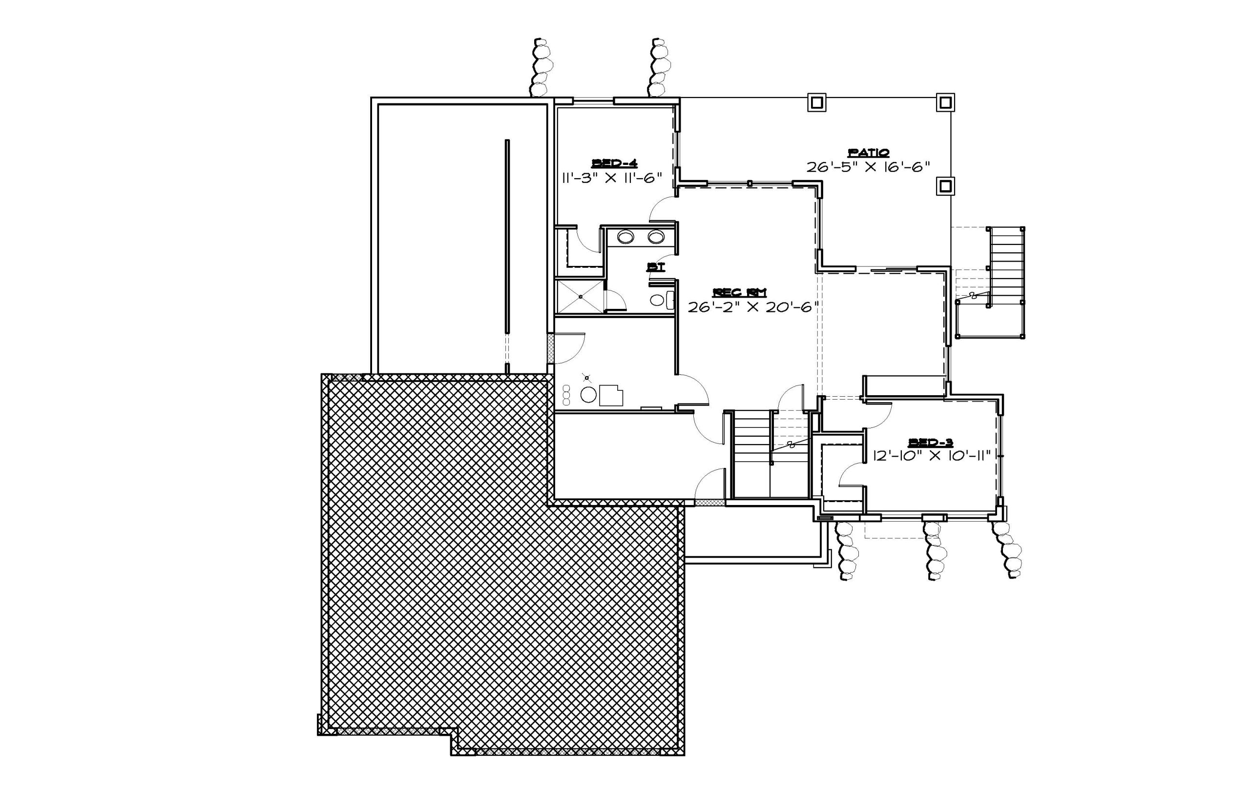
R-1802-20UE
Download PDF
Back to search
Type:
Rambler
Style:
Modern
1802 sq. ft
69' Wide
65' Deep
4 Rooms
3 Bathrooms
Main Floor
Basement
Front Elevation
Rear Elevation